
En nøkkelferdig hytte av høy kvalitet og med en standard som krever minimalt med vedlikehold. Hytta er kvalitetsbygget av fagfolk. Her er ingen snarveier eller billige løsninger som krever hyppig utskiftning. Denne hytta kan du bekymringsfritt reise fra etter en avslappende ferie eller langhelg, og vite at den står trygt og uten fare for forfall.
Bjørk 100
En praktisk og arealeffektiv hytte med hems og overbygget inngangsparti. Egen inngang til isolert bod. Peis, og varmekabler i alle gulv, gir deg den gode og lune følelsen på høst- og vinterkveldene. Hytten er designet med mange og store vinduer for å kunne nytte den fantastiske utsikten, samt gir mye naturlig belysning. Åpen kjøkken/stue løsning, innbyr til samvær og gir deg mange møbleringsmuligheter. Hems med store vinduer gir en ekstra god romfølelse, her er det også mulighet for soveplass, kontorplass og hemsestue.
1.etasje inneholder: 3 soverom, flislagt bad/wc, flislagt gang med trapp til hems, teknisk rom og åpen kjøkken/stue løsning med utgang til stor terrasseplatting via doble verandadører.
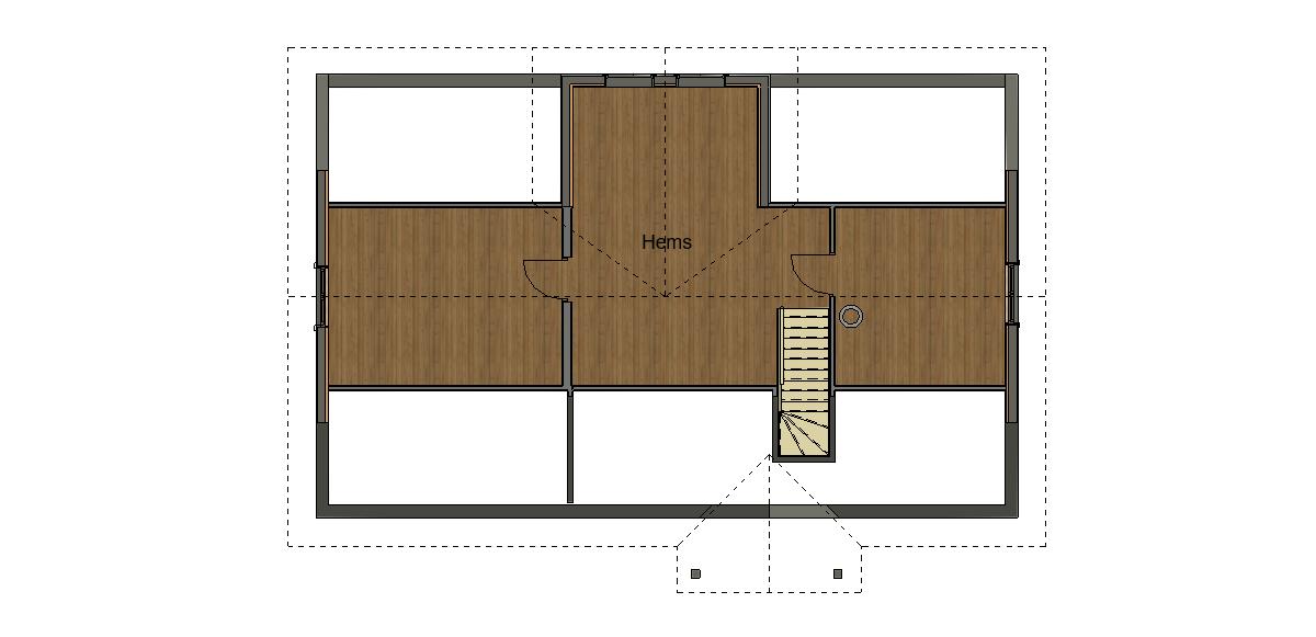
Hems inneholder: 2 disponible rom og stue/hems med store vinduer.
Det er avvik mellom illustrasjon og ferdig hytte.
Hytte: kr 3.750.000,-
Tilkobling: kr 58.500,-
Grunnarbeider: kr 348.000,-
Søknadsgebyr og dokumentavgift tilkommer.
Komplett standard inneholder:
Hytten ligger idyllisk på et høydedrag mellom den stille skogen og blanksvarte Setten; den 12 kvadratkilometer store innsjøen proppa med abbor og gjedde. I tillegg til Setten, byr skogen på nærmere hundre, deilige fiskevann, bær og sopp, og milevis med turstier og skiløyper.
Hyttefeltet er vestvendt med gode solforhold. Det er vei helt frem til tomta og utbygd infrastruktur som strøm, avløp, vann og høyhastighets internett. Her kan du holde skuldrene lave hele året.
Sjarmerende Setskog, er nærmeste tettsted, ca 5 minutter unna. Her finner du Jokerbutikk, kafé og diverse andre servicetilbud. For utvidet fritids- og servicetilbud er det kun 10 minutters kjøring til Bjørkelangen mot vest, med et rikt handelssentrum, treningssenter, sports- og friidrettsanlegg, hoppbakke, slalombakke og svømmehall. 15 minutter østover ligger koselige Rømskog, med golfbane og et unikt spa-hotell. Om du vil gjøre unna svenskehandelen, er det kun 45 minutter til Tøcksfors i Sverige.
Det tilkommer tilknytningsavgift på kr 58 500 ,- for vei, vann, avløp, strøm og fiber. Det er privat eid renseanlegg som driftes og eies av Hytteforeningen. Årlig avgift til
Graving utført av HF Anlegg og Skog AS. Pris for gravingen til denne hytta er:
Hytten bygges i høykvalitets standard og blir bygget etter gjeldende normer og regelverk. Hytten leveres nøkkelferdig eller etter avtale. Det tas forbehold om prisstigning.
Hytten leveres ikke av Setten Hyttepark, men av tilknyttet samarbeidspartner. Tomtene selges uten byggeklausul på hytten. HF Anlegg og Skog AS har byggeklausul for grunnarbeidene.
